Type : Interne verbouwing
Locatie : Buchten, NL
Jaar : 2022
Fase : Gerealiseerd

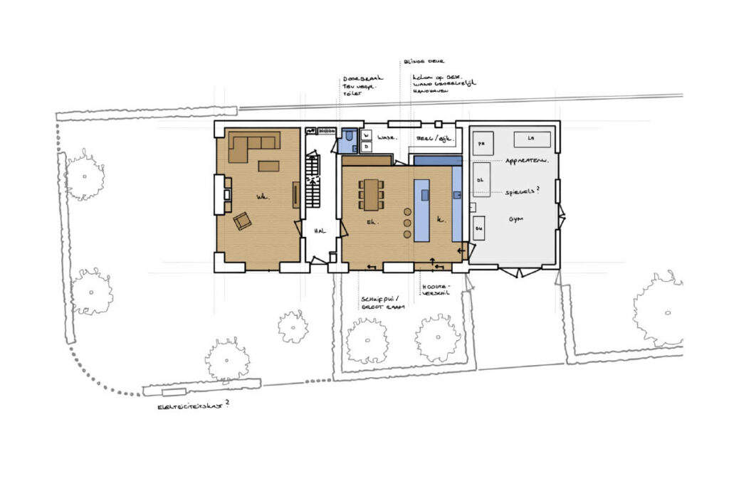
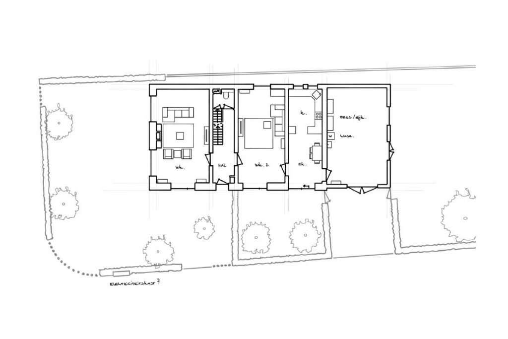
Deze ruime vrijstaande boerderijwoning dateert uit circa 1669 en is in oorsprong een van de oudste woningen in Buchten. Het pand is in de loop der jaren gerenoveerd maar de oorspronkelijke ruimteverdeling op de begane grond verdieping is nog duidelijk afleesbaar. De wens van de huidige bewoners is om van de nieuwe keuken en eetkamer het hart van de woning te maken. Dit heeft ertoe geleidt dat de voormalige tweede woonkamer en keuken worden samengevoegd. Secundaire functies zoals het toilet en bergruimte conformeren zich rondom deze prominente ruimte, zodat deze een ruime, doch aangename maat hanteert.