Type : Mixed use
Locatie : Hasselt, BE
Jaar : 2016
Fase : Ontwerp
Het Kolonel Dusartplein te Hasselt wordt ervaren als een grote, onbestemde ruimte, die enig gevoel van maat en schaal ontbeert. Verder zorgt de drukke weg die het gebied doorkruist voor een lawaaierige, onaangename beleving van het plein. Gevraagd is het ontwerp van een markthal, met een additionele functie die de kwaliteit van het plein zal verbeteren. Door het toevoegen van een lintbebouwing langs de weg wordt de grote onbestemde ruimte opgedeeld in een diversiteit van potentieel aantrekkelijke ruimtes, elk met een eigen karakter. De open plint van het gebouw zal als een drager voor het marktaanbod fungeren. Het woonaanbod wat op de verdiepingen geplaatst wordt, bied huisvesting voor de studenten in Hasselt.








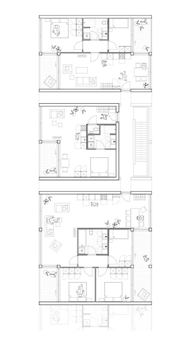
Een gevarieerd woonprogramma speelt in op de behoefte aan studentenhuisvesting in Hasselt. Hierbij wordt onderscheid gemaakt tussen de types, S, M en L. Deze zijn telkens gesitueerd rondom één van de stijgpunten die in verbinding staan met de publieke, open plint. Het kleinste appartement (S) is een studio met een balkon aan de zuidzijde. De grotere doorzon-appartementen (M en L) beschikken over respectievelijk twee en drie slaapkamers en zowel aan noord- als zuidzijde een buitenruimte.



