Type : Verbouwing bestaand woonhuis
Locatie : Maastricht, NL
Jaar : 2023
Fase : In uitvoering
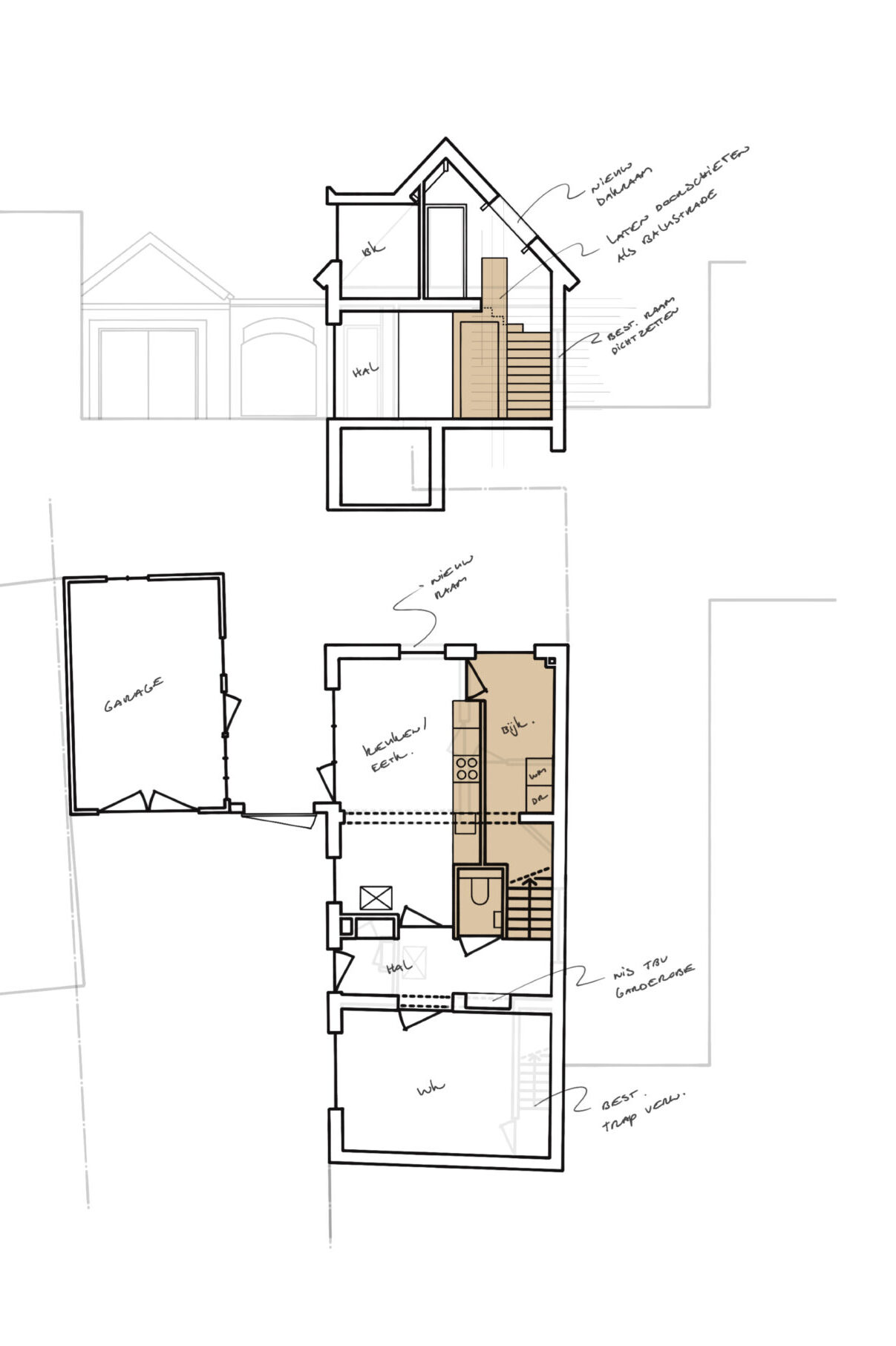
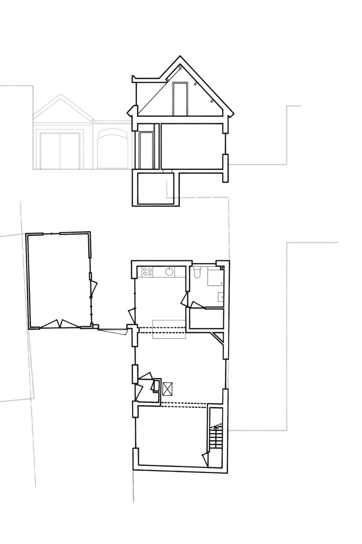
Gelegen aan een drukke doorgaande weg kent deze karakteristieke jaren ’30 woning toch enige geborgenheid in de oksel van de naburige bebouwing. Het woonhuis beschikt momenteel over een minimale dialoog tussen de woonruimtes en de riante oprit en achtertuin. Daarnaast bevindt de huidige badkamer zich naast de keuken en dienen twee van de drie slaapkamers op de verdieping als doorloop. Een grootschalige renovatie biedt de mogelijkheid voor een optimalere indeling en verduurzaming van het pand. De dienende functies zoals het toilet, berging en de keuken vouwen zich rondom de nieuwe trap die in het midden van de woning geplaatst wordt. Daardoor is het mogelijk het contact tussen de keuken en achtertuin te vergroten, en voor te sorteren op een toekomstige uitbreiding aan de oostzijde.














